Role
Creative Director
Creative Vision, Concept Development, Project Creative Direction + Oversight, Architectural, Furniture + Interior Design, Team Leadership, Client Presentation + Collaboration, Cross-team Collaboration + Alignment.
Creative Director
Creative Vision, Concept Development, Project Creative Direction + Oversight, Architectural, Furniture + Interior Design, Team Leadership, Client Presentation + Collaboration, Cross-team Collaboration + Alignment.
Agency
Torpedo
Torpedo
Collaborators
Iain Lewis - Founder + Chairman
Chris Wright - Account Director
Jasmin Bains - Sr. Account Manager
Richard Porter - Art Director
Dan Fitzhugh - Sr. Designer
Cher Pratley - Sr. Designer
Lucia Vazquez - Designer
Izzy Jenkins - Designer
Steve Hibberd - 3D Design
Savills Madrid - Architectural Design + Sourcing
Campos - Construction
Vodafone - Technology
Iain Lewis - Founder + Chairman
Chris Wright - Account Director
Jasmin Bains - Sr. Account Manager
Richard Porter - Art Director
Dan Fitzhugh - Sr. Designer
Cher Pratley - Sr. Designer
Lucia Vazquez - Designer
Izzy Jenkins - Designer
Steve Hibberd - 3D Design
Savills Madrid - Architectural Design + Sourcing
Campos - Construction
Vodafone - Technology
Xoople didn’t want an office that simply functioned — they wanted a space that felt like a natural extension of their brand.
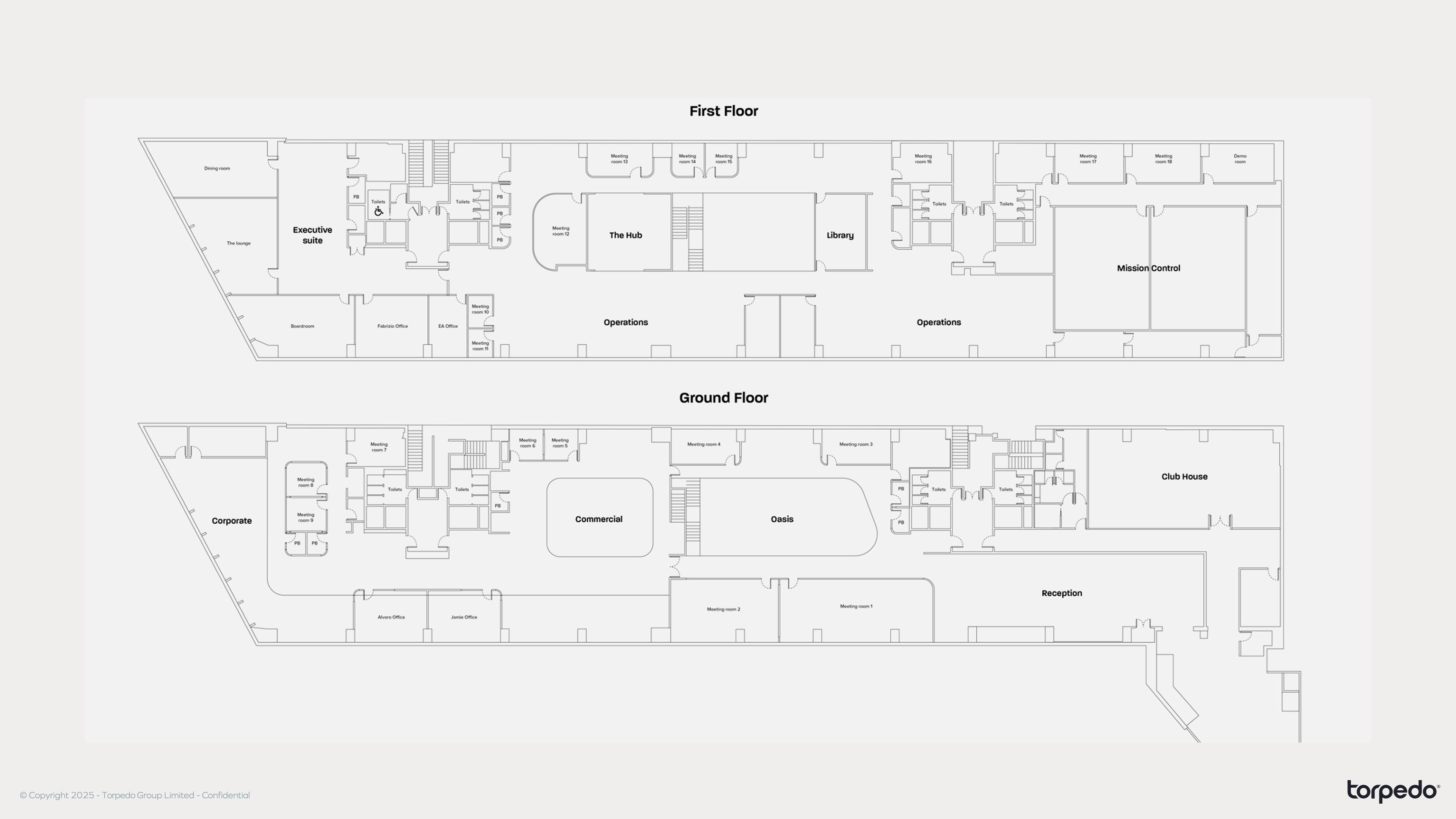
Having partnered with them to develop that brand, we were brought in to ensure the physical environment lived up to the same ambition. The challenge was to design a 43,000 sq ft workplace in Tres Cantos, Spain that could balance complex operational needs with a clear and cohesive experience — one that supported 24/7 teams, multiple security layers, partner collaboration and high-profile visits, without ever feeling like a conventional corporate office.
Working from the ground up, we defined the floorplan, mapped how teams would work together and established the spaces needed to support wellbeing, focus and collaboration. From there, we developed a concept rooted in biophilic design — ‘a balanced view of Earth’ — creating an environment that reflects Xoople’s values of connection, observation and sustainability.
Our role spanned from initial spatial strategy through to the detailed selection of materials and finishes, ensuring the original vision carried through into the final architectural delivery.
Office Design
Video by Savills
Video by Campos
Video by Savills
Office Design Imagery
Imagery by Campos
Still reading? For anyone interested, the following shows our creative approach and a look behind the scenes.
Our Challenge
To identify experiences, spaces, functionality, features, aesthetics and furnishings that create an office design that best embodies and personifies the Xoople brand.
Our Guiding Principles
Zone Mapping + Floorplan Design
Design Concept
Space Design Moodboards
Furniture + Material Sourcing
Bespoke Furniture Design